الخريطة

شقة 156 م بالحي التكميلي امام كمباوند الاشرافية دور متكرر استلام فوري

(0)

القاهرة الجديدة, القاهرة 9 مشاهدات 02/أبريل/2026

4.880.000 LE بيع

نظرة عامة

آخر تحديث 02/أبريل/2026
معرف العقار VI0210
نوع العقار شقة
رقم العقار 106
الفئة مبنى
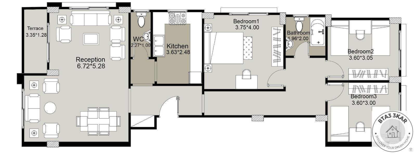
المساحة 156 م²
نوع التشطيب نصف تشطيب
الاطلاله main_street
عدد غرف النوم 3
عدد الحمامات 2
عدد الطوابق 1
تسليم المبدئي 02/أبريل/2026
تاريخ التسليم النهائي وحدة 02/أبريل/2026
السعر 4.880.000 LE
نوع الدفع Installment
دفعة أولى 1.952.000 LE
خطة أشهر 36 months
معدل الدفع 81.333 LE monthly

الوصف

الخدمات المتوفرة / لوكيشن مميز بحري صريح علي شارع عرضه 100 م ، داخلة صريحة من ش التسعين امام كمباوند الاشرافية 
 


المميزات

5 د من شارع التسعين

أسانسير

بحري

بلكونة

جراج

جراج خاص

حصة بالأرض

عداد

عداد كهرباء

مخزن

موقف سيارات

واجهة حديثة موقع مميز



الموقع

106, Area C, Madinaty, Cairo, 11841, Egypt



شارك هذا العقار:


Write a Review


اكتب مراجعة

يرجى تسجيل الدخول لكتابة مراجعة!




اتصال

Live Chat
Live Chat متصل

مرحبًا! كيف يمكننا مساعدتك اليوم؟

Powered by FOB Live Chat
Your experience on this site will be improved by allowing cookies Cookie Policy