الخريطة

شقة دور متكرر 270 م  واجهة بانوراما على أجمل وأرقى حديقة بالياسمين

(0)

القاهرة الجديدة, القاهرة 60 مشاهدات 15/أبريل/2026

9.250.000 LE بيع

نظرة عامة

آخر تحديث 15/أبريل/2026
معرف العقار VI0269
نوع العقار شقة
الفئة مبنى
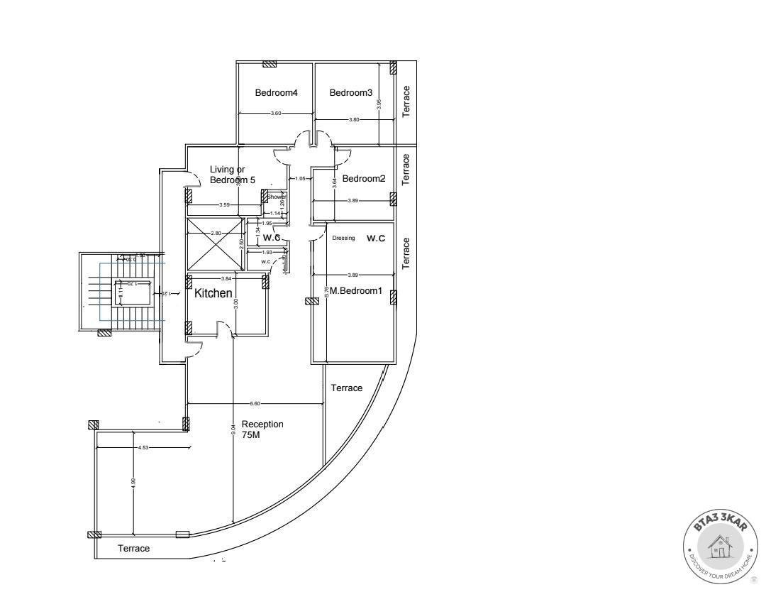
المساحة 270 م²
نوع التشطيب نصف تشطيب
الاطلاله garden
عدد غرف النوم 5
عدد الحمامات 2
Available floors اول, ثاني
تسليم المبدئي 01/ديسمبر/2026
تاريخ التسليم النهائي وحدة 01/ديسمبر/2026
اتجاه النظر إلى الواجهة اليسار
السعر 9.250.000 LE
نوع الدفع Cash

الوصف


📐 المساحة: 270 متر

🌿 مميزات الموقع
    •    واجهة بانوراما على أجمل وأرقى حديقة بالياسمين 🌳
    •    تاني نمرة من محور أحمد شوقي
    •    خطوات من شارع التسعين الشمالي بكل خدماته ومولاته 🛍️
    •    قريب جدًا من مطعم قصر الكبابجي

🏗️ تفاصيل الوحدة
    •    ريسبشن 4 قطع
    •    6 غرف 
    •    منهم غرفة ماستر بحمام ودريسنج
    •    3 حمامات
    •    مطبخ

🏛️ مميزات إضافية
    •    واجهة كلاسيك مميزة لواجهات النمر الاول)
    •    تقسيمة عملية ومريحة جدًا

⏳ موعد الاستلام
    •    خلال 6 شهور
    •    بالعداد الكهربائي + أسانسير


    •    أنظمة سداد وتقسيط متعددة متاحة


المميزات

٥ دقائق من شارع التسعين

عداد الكهرباء

مصعد

واجهة عصرية، موقع متميز

واجهة بحري

تراس

حديقة

عداد

حصة من الأرض



الموقع

4, El Sheikh Hassan Mamoun Street, Al Yasmeen 7, Yasmeen Districts, Cairo, 11865, Egypt



شارك هذا العقار:



اكتب مراجعة

يرجى تسجيل الدخول لكتابة مراجعة!




اتصال

العقارات ذات الصلة

Live Chat
Live Chat متصل

مرحبًا! كيف يمكننا مساعدتك اليوم؟

Your experience on this site will be improved by allowing cookies Cookie Policy